Mixed Use
5th April 2024
Update 2023/2024
Here is a look at some of our projects that have recently commenced on site.
Commenced Summer ’23
Holland Street, Kensington and Chelsea

This project will consist in the rear extension at basement level and other alterations.
See the Full Project HereCommenced Winter ’24
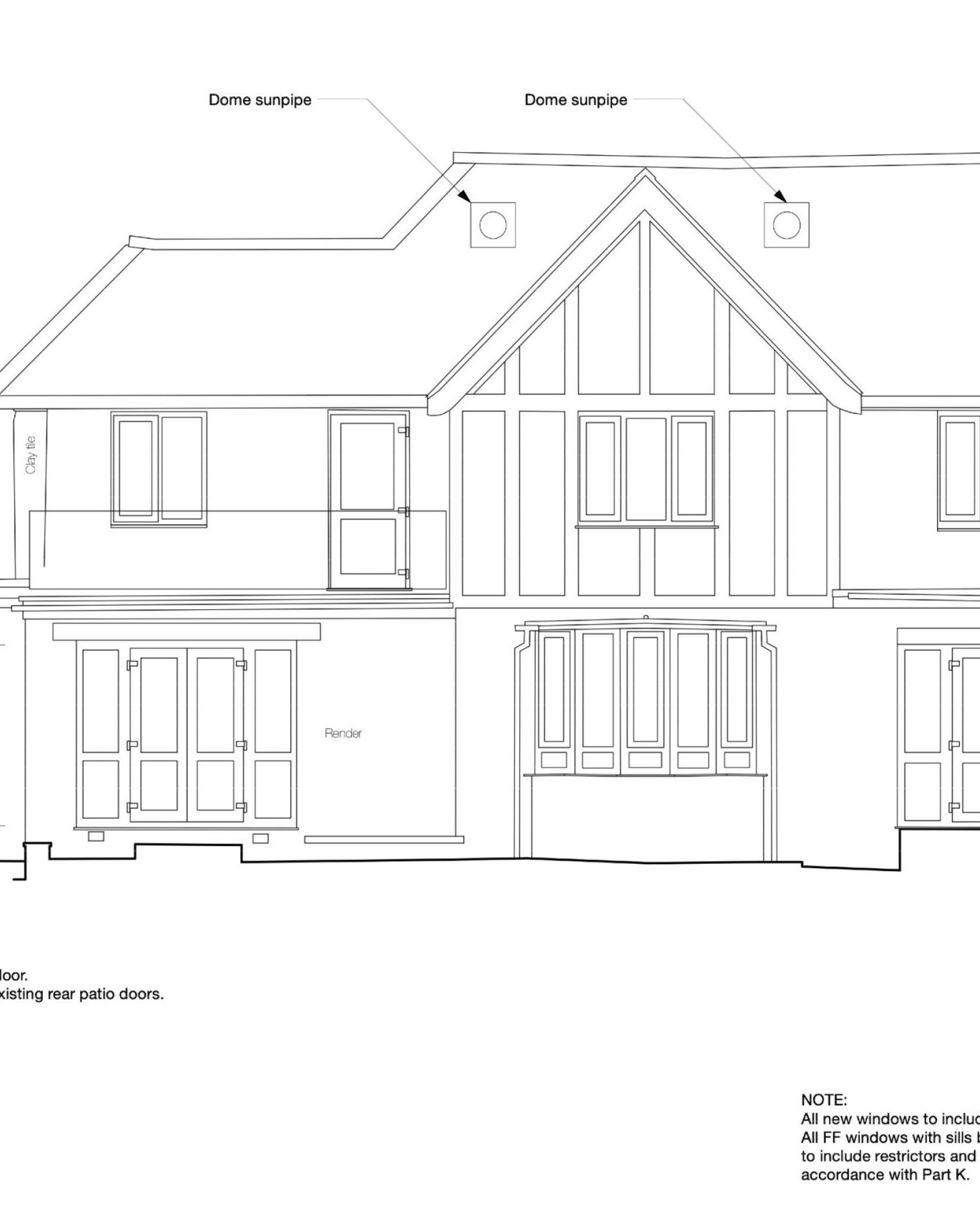
Timberley, Sidmouth Road

This project will consist of a new First Floor extension over infilled Ground Floor yard and over existing South-West facing roof terrace.
See the Full Project HereCommenced Spring ’24
Fortess Road, Kentish Town

This project will consist of the internal and external alterations to existing building to create a partial conversion from 2 no. maisonettes to 1 no. maisonette and 2 no. flats with a new roof terrace serving the retained maisonette.
See the Full Project Here