Start a project

Artesian Road, Notting Hill

Full refurbishment and extension of Georgian terrace house.

Maximising the potential of the house

Our clients approached us to prepare designs for a wholesale refurbishment and extension of their recently purchased Georgian family home.

The property is located in the Westbourne Conservation Area with a decorative front elevation and rear elevation containing an unattractive rear closet wing. The internal layouts were cramped and dark, in particular the low ceilinged lower ground floor, and did not make best use of the potential of the house and its connection to the rear garden.

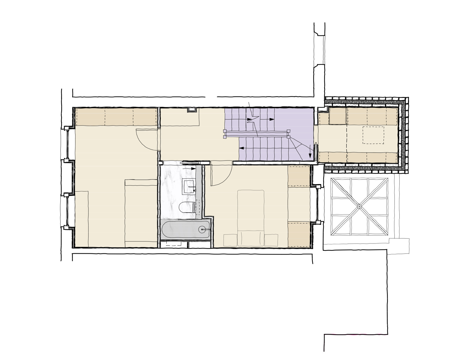
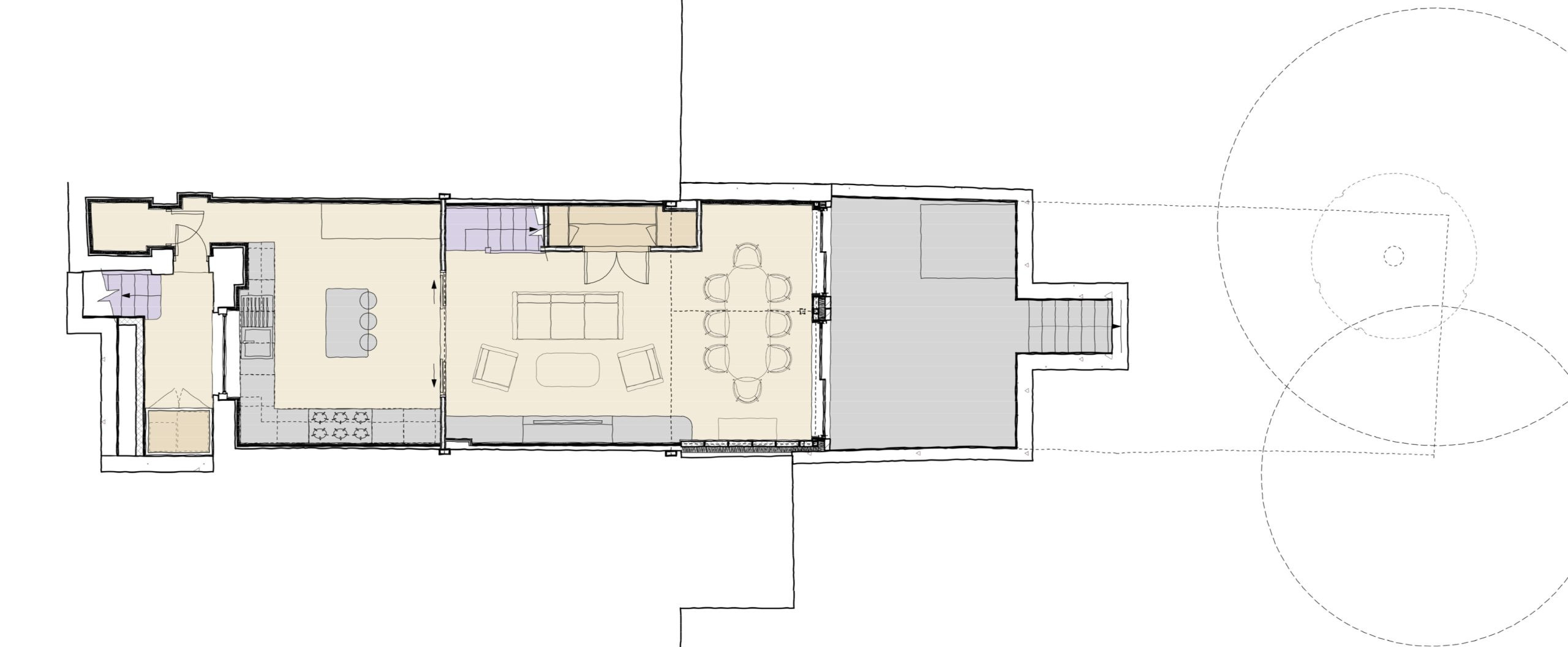
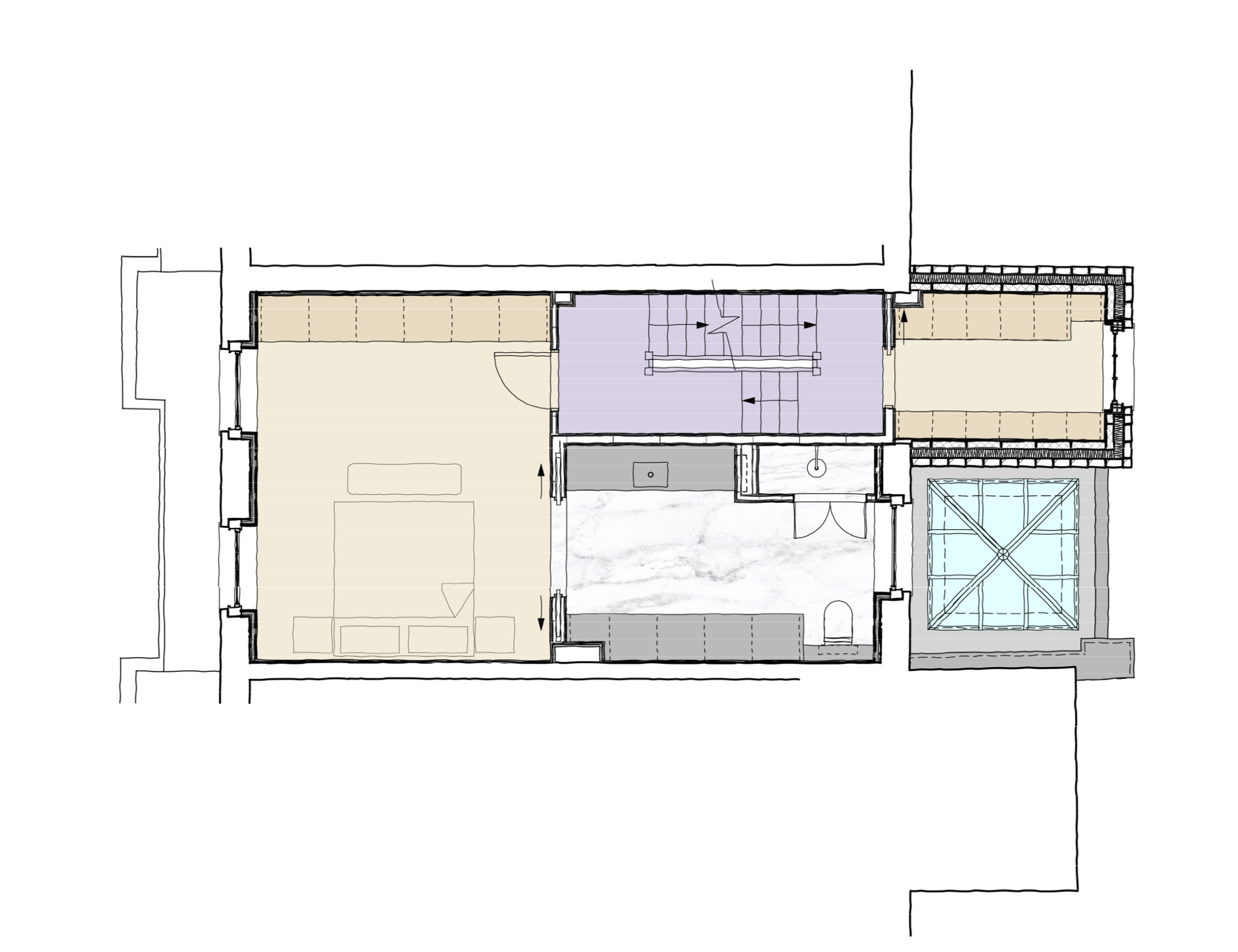
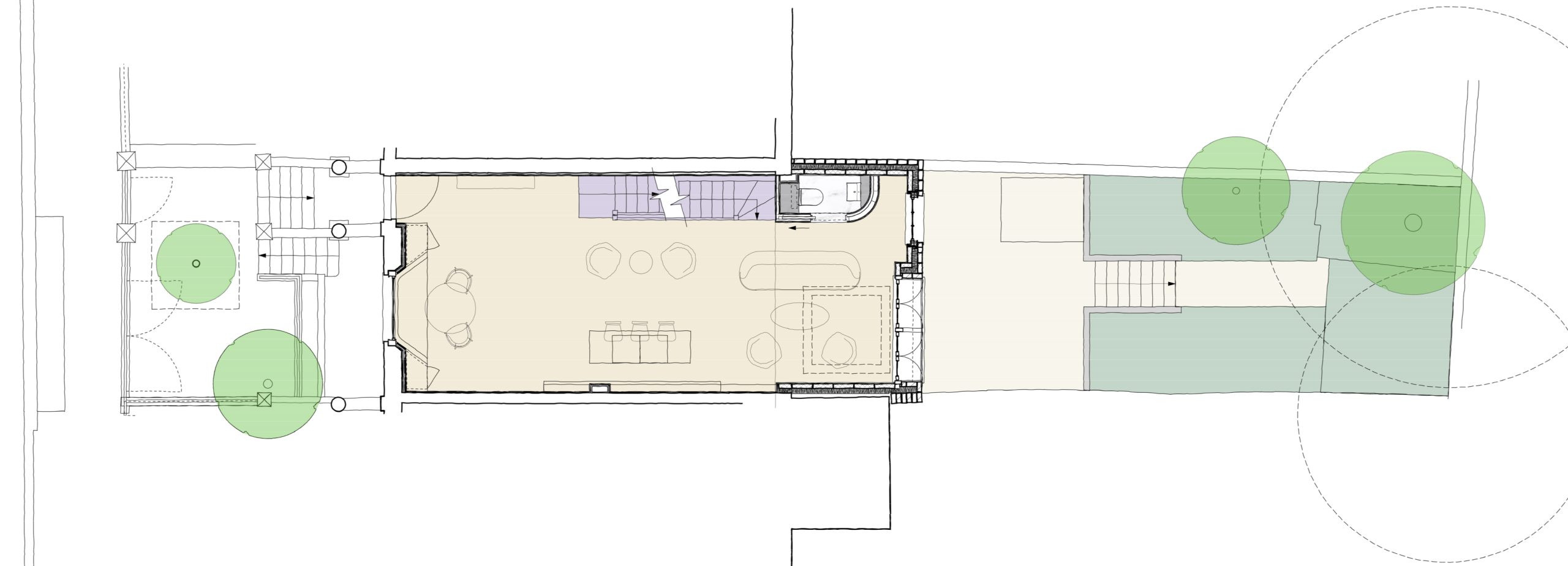
Our design proposals included a completely new internal layout, with the living spaces in an open plan ground floor, and the kitchen and dining spaces in the lower ground floor with a lowered floor in order to improve the floor to ceiling height.

The existing rear closet wing is to be rebuilt to a larger size, and a infill extension at lower ground and ground floors provides valuable additional floor space. Ancillary utility room and dressing room spaces are squeezed in to the upper floors of the closet wing. Five bedrooms have been inserted within the upper floors, including two bedrooms in a third floor mansard roof extension.

The front and rear garden areas were also part of our design scope and required careful coordination and detailing in order to protect existing mature trees whilst creating the contemporary outdoor spaces our clients exacting brief demanded.

We went through a detailed pre-application advice process with Westminster Planning in order to de-risk the full planning application. After having successfully obtained planning consent we fast tracked the detailed technical design and specification for pricing and construction in order to work with our clients target programme dates.

architectural drawings

Location

The development is located in Notting Hill, West London.