Brentwood Road, Romford
Backland development project to create a new family home.
Location
London Borough of Havering, Romford RM1
Status
Completed
Use
Residential
Client
Sinclair Builders
Structural Engineer

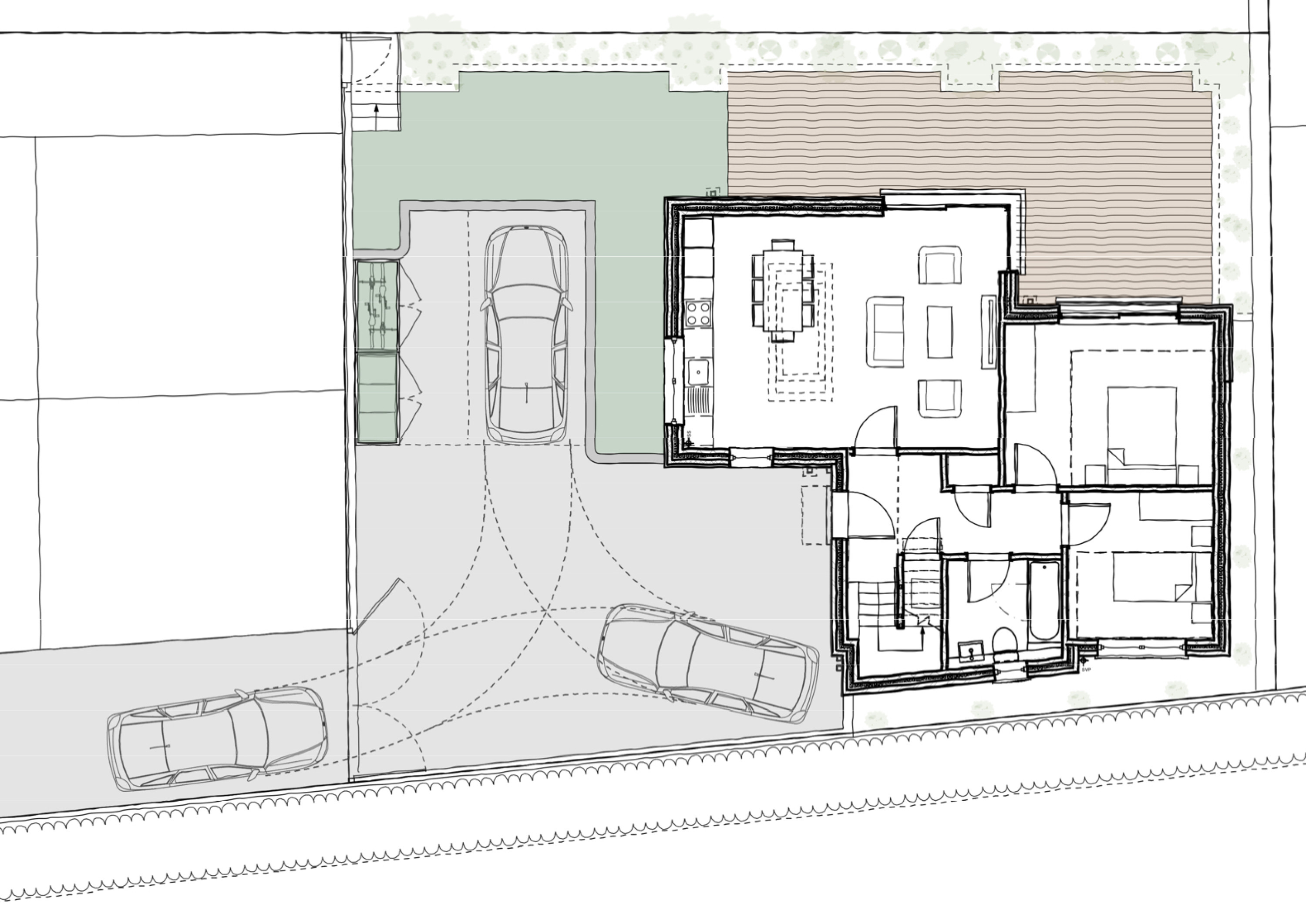
Overcoming tricky planning issues through creative design
Haines Phillips Architects were appointed by Sinclair Builders to prepare proposals for a new single family dwelling house on land to the rear of their existing flatted building. The site is to the rear of an existing detached flatted building in a residential area, bounded to the rear by school grounds.
A previous planning application by others for the site had been refused consent. Our design proposals evolved through a number of iterations in order to address the original reasons for refusal and subsequent concerns regards the impact on the neighbouring property.



The building design is intended as a contemporary interpretation of the local building forms, with modern, robust materials such as fibre cement board cladding, London stock brickwork, slate and sedum roofs.
The site levels are reduced to set the house in to the ground and the fenestration has been carefully designed in order to reduce the visual impact and perceived bulk of the new building.