Start a project

Burbage Road, Dulwich

Transformation of ground floor living spaces and garden access of 1950’s family home.

Transforming the connection between living and garden spaces

Haines Phillips were appointed to prepare designs for the refurbishment and transformation of the ground floor of a 1950’s semi-detached house in the Stradella Road Conservation Area of the Dulwich Estate.

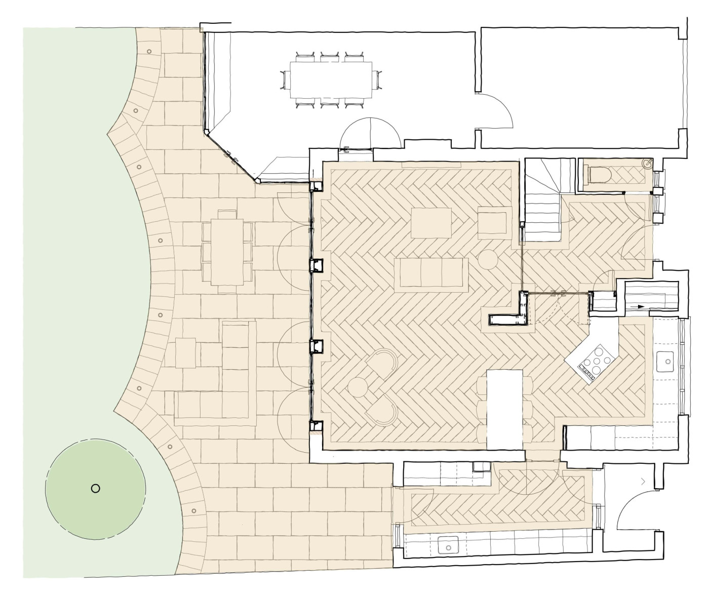
The clients design brief was to modify and upgrade the existing ground floor layout and to create a better link between the house and their large, beautiful rear garden.

Our design proposals comprised internal alterations to create open plan living, kitchen and dining accommodation and to improve the flow of spaces and views between the house and garden.

Our services included outline design, an application to the Dulwich Estates for their approvals, detail design, interior design, tender action and administration of the building contract through to completion of the works which took place during the early stages of the Covid-19 pandemic and completed on time and on budget.

Detailed design of new glazing, joinery and finishes

The existing rear ground floor windows were removed and replaced with a new composition of steel windows and doors.

Matching fire rated steel framed internal glazed doors and screens were introduced in the entrance hallway to allow views through the house to the garden.

Our detailed design and specification including minimal joinery and large format herringbone tiling help to maximize the available space and to create a light filled, open living room.

Before, during and after photos of rear elevation
Having decided to carry out a substantial renovation, we knew that we needed help to translate our thoughts into a working proposition and to find and oversee builders who would deliver. Having listened to what we wanted to do, Maha Phillips of Haines Phillips Architects, came up with a simple but clever idea that achieved the desired outcome. Ably supported by Paul Lofthouse, that was turned into plans, tenders and regulatory permissions which resulted in the appointment of a builder they recommended, who delivered an excellent outcome in an efficient and timely fashion, despite all the challenges of the circumstances at the time.

Client Testimonial

New fire rated glazed internal screen and doors

Location

The development is located in Dulwich, South East London.