Start a project

Glazed Rear Extensions, Barrington Road

Rear and loft extensions to family home.

Enhancing and enlarging the family home

The existing house is a semi-detached two storey early 20th century family house with a rear boundary facing out towards a local park.

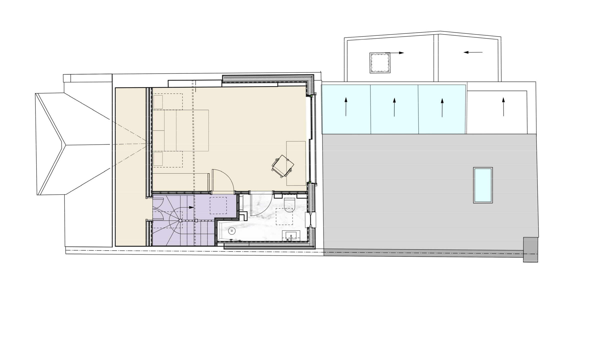
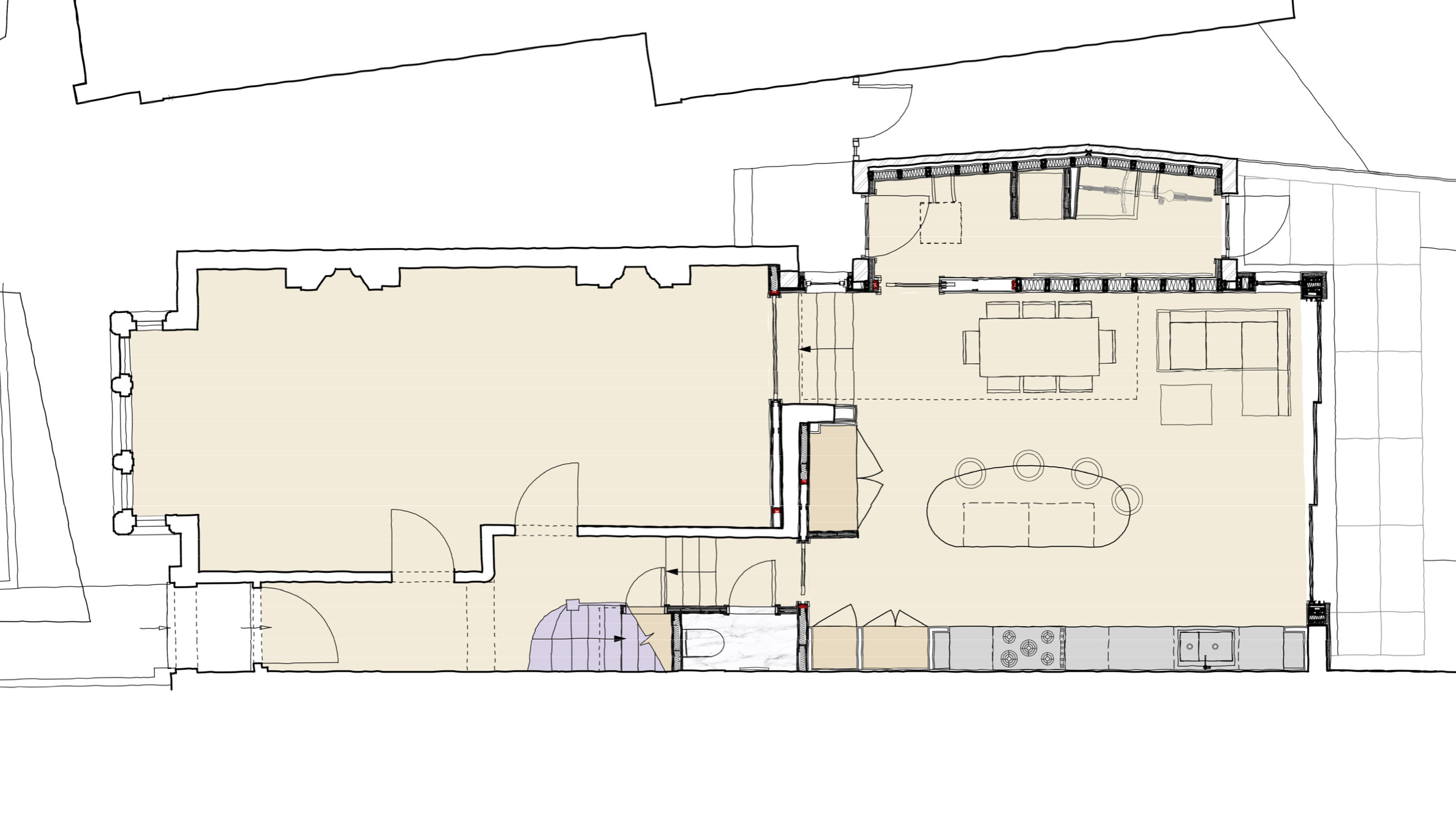
Our design proposals altered and extended the internal layout at ground floor level by partially infilling the gap to the side of the property and adding a glazed rear extension to improve outlook and access to the rear garden.

architectural drawings

Location

The development is located in Crouch End, North London.