Start a project

Rear & Basement Extension, Barrington Road

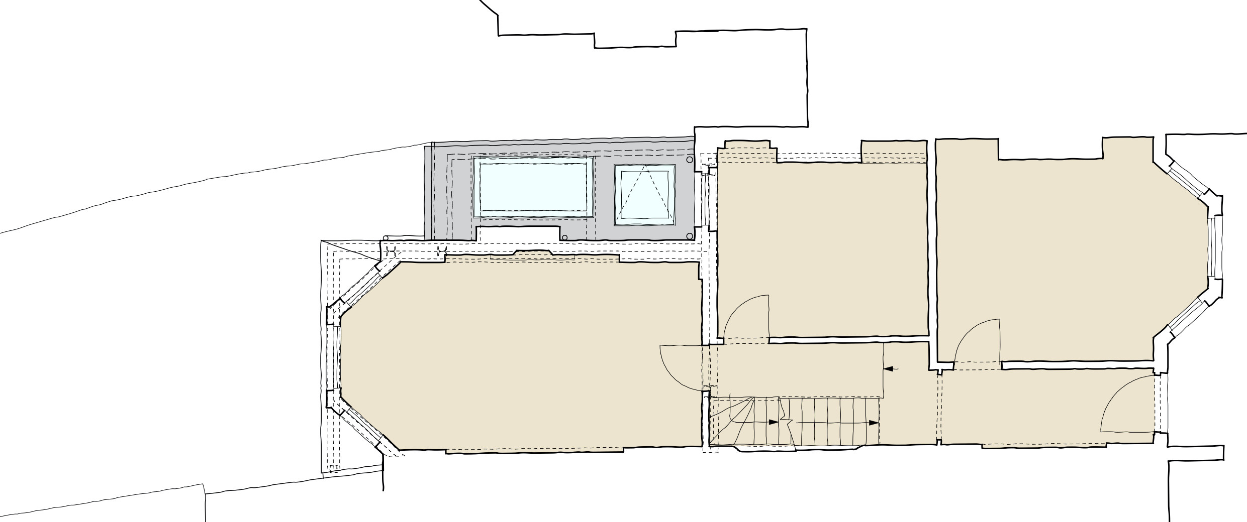
Transformation of an existing basement with rear and side extensions.

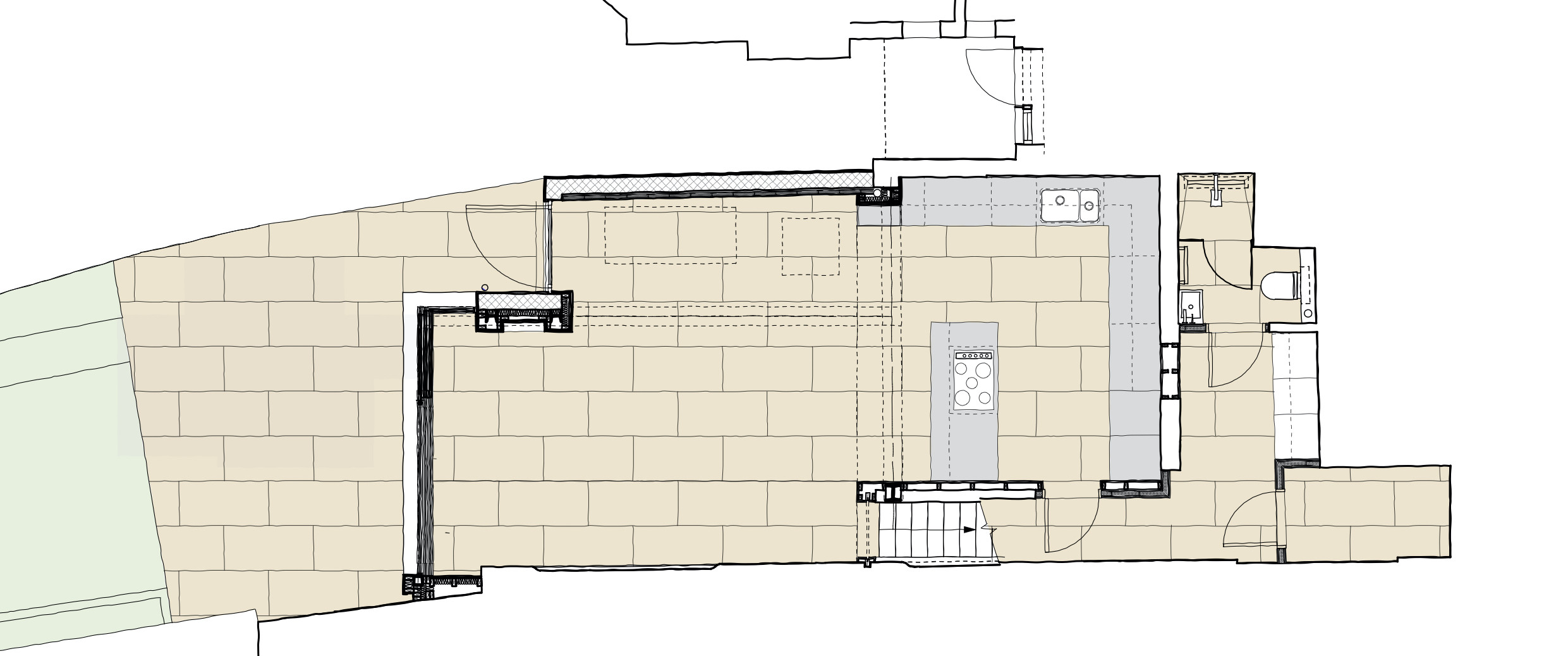
Creating a new family space and connection to the rear garden

Our extension design in-filled a little used external side passage and extended the accommodation into the garden, with a minimally framed glass screen and triple sliding doors that serve the main part of the basement, and a large pivot door that terminates the side infill-extension.

floor plans

Full architectural service

Our services on this project started with concept sketches and followed on through planning, detailed design, procurement, and contract administration and project management through the construction stage.

Haines Phillips thoughtful/insightful design has completely transformed our home and the way we live/our lifestyle. Their invaluable guidance throughout the project has created a haven. We are very pleased to have made the decision to extend the kitchen and listen to their advice on key areas

Client

Location

The development is located in Crouch End, North London